Kenmerken
Grondoppervlakte
1000 tot 1500 m²
Plaatsnaam
Balen
Beschrijving
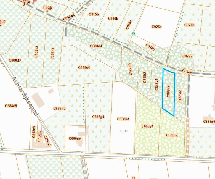
Bosgrond te koop : perceel C888 V2 te Balen Wolfsdonken
14a35
Te bereiken o.a . via Schoorheide – richting Wolfsdonk 17 – einde gravel weg links
Ligging : zie foto’s uit CadGIS
Verdere info te bekomen via chat.
Zie ook mijn perceel T2 dat een 20 m verder ligt
Het is een gemengd bos met van alles wat door elkaar geplant en (wild-) gegroeid met de jaren.
Een kapvergunning kan kosteloos aangevraagd worden bij de milieudienst. Bosdunning op zich is toegelaten en ter plaatse te bespreken met de bosgroep welke bomen men wil kappen na de verkoop.
Het eerste bos 888V2 begint, tellende vanaf het einde van de onverharde weg, op 4.3 + 19.0 = 23.3 m. Dat stuk is zelf 20.8 m lang. Vervolgens een ander bos niet mijn eigendom een stuk van 20.3 m. En daarna begint perceel 888T2 dat 23.6 m lang is.
Verdere info te bekomen via chat.
14a35
Te bereiken o.a . via Schoorheide – richting Wolfsdonk 17 – einde gravel weg links
Ligging : zie foto’s uit CadGIS
Verdere info te bekomen via chat.
Zie ook mijn perceel T2 dat een 20 m verder ligt
Het is een gemengd bos met van alles wat door elkaar geplant en (wild-) gegroeid met de jaren.
Een kapvergunning kan kosteloos aangevraagd worden bij de milieudienst. Bosdunning op zich is toegelaten en ter plaatse te bespreken met de bosgroep welke bomen men wil kappen na de verkoop.
Het eerste bos 888V2 begint, tellende vanaf het einde van de onverharde weg, op 4.3 + 19.0 = 23.3 m. Dat stuk is zelf 20.8 m lang. Vervolgens een ander bos niet mijn eigendom een stuk van 20.3 m. En daarna begint perceel 888T2 dat 23.6 m lang is.
Verdere info te bekomen via chat.
...
...
...
...
...
...
...
...
...
...
...
...
Lommel
883x bekeken
2x bewaard
Sinds 27 nov '25
Zoekertjesnummer: m2338943233
Populaire zoektermen
bosgrond te koopGronden en Bouwgrondenbosgrondbalenperceel met visvijverbosgrondgrond balenbosgrond te koophuis te huur balenbosgrond te koopbouwgrondenbouwgrond balenbalen huur in Appartementen en Studio's te huurchalet balen in Buitenverblijven te kooplego wolfpack in Speelgoed | Duplo en Legokolen en houtkachel in Kachelslego titanic 10294 in Speelgoed | Duplo en Lego255 50 20 banden in Banden en Velgenpeugeot boxer velgen in Banden en Velgenvynckier bel in Elektriciteit en Kabelsmuziek toren in Vinyl Singlespgo in Brommeronderdelen | Scootersbladzuiger black decker in Bladblazerselaut in Kunst en Cultuur | Architectuur